
新町3丁目 戸建 [ありがとう御座いました!募集は終了いたしました。]
所在地 | 東京都府中市新町3-34-5 |
---|---|
交通 | JR中央線「国分寺駅」バス8分 停歩6分・京王線「府中駅」バス10分停歩6分 |
賃料 | 上記表示 |
共益費 | 0円 |
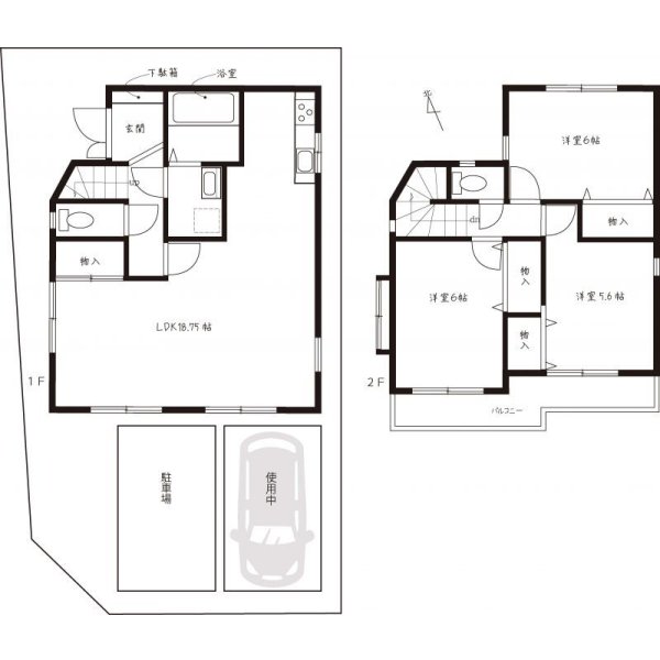
間取り | 3LDK |
専有面積 | 1階46.68㎡ 2階39.64㎡ |
建物種別 | 貸家 |
構造 | 木造2階建て |
建築年月 | 2008年3月 |
駐車場 | 1台分 |
敷金 | 1ヶ月:ペット飼育2ヶ月 |
礼金 | 1ヶ月 |
その他 | 更新料は、新賃料の1ヶ月分 |
引渡し | 相談 |
現況 | 空 |
概要
✔チェックポイント | ペット飼育の際には、敷金が2カ月分かかります。ペット飼育2匹ご相談受けたまわります。詳細をお聞きしますのでご連絡ください。 |
---|---|
賃貸・貸家 | ペット飼育ご相談くださいませ。内覧のご予約!喜んで!!お気軽にご連絡下さいね。 |
スミアイPoint | 駐車場1台、小さな車ならもう1台停められそうです。 |